








賑やかな学芸大学駅前から少し離れ、低層の住宅地を抜けた目黒通り沿いにある賃貸用の集合住宅。短冊状に並べられた一方向だけに開口部がある住戸の集積ではなく、その周辺環境に対して大きく開いた水平窓のある住戸が縦動線のコアを取り囲むように計画されている。住戸ごとに変化する周辺環境とプランの組合せによる多様な住宅の集まった集合住宅である。
圧倒的なボリュームの既存建物に対して、斜線制限や日影規制により削られたボリュームは北側の住宅地に良好な環境を提供し、削られた部分をルーフテラスとして利用することで、入居者には北側の美しい景色を楽しめる空間を提供することが可能となった。
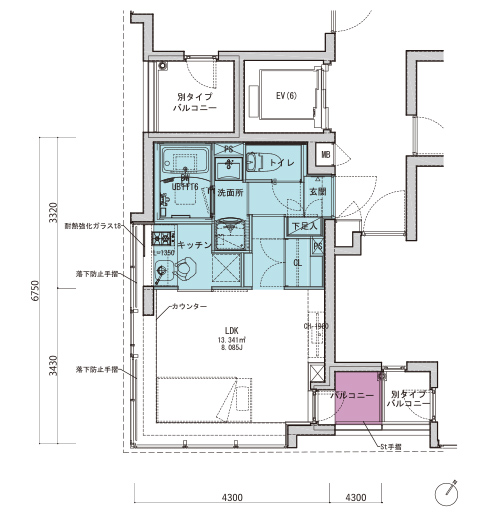
集合住宅は空室リスク回避の点から、しばしば一番良いとされる環境に対して多くの住戸を短冊状に並べ計画されるが、本計画では1つの住戸に出来るだけ多くの周辺環境を取り込むため水平に引き延ばした連続窓を採用した。開口部は一方向だけでなく、南と西、西と北や南からぐるりと北側まで、多方向に開いた計画とした。
腰壁状になった水平窓の連続は、歩行者からの視線をカットしつつ、室内からの視線の抜けを最大化している。逆梁によってカウンター状にせり出した部分は、キッチンになったり、食事や勉強をするテーブルになったり、腰掛けたり寝転がれるソファになったり、アクティビティの拡張を意図している。周囲の環境とそれを取り込むプランの組み合わせにより多様なシーンを創り出すことができ、多様化した働き方やそれぞれの住み手のライフスタイル、その変化に最適化できる住戸の集まりを目指している。
集合住宅の平面プランは、設計や施工上の合理性により、サーバント・スペースは上下階で揃ってくることが一般的であるが、本計画はあえてその配置を各階で変えるよう設計し、多様な住戸プランを生み出した。その結果、サーブド・スペースのために最大限に確保した開口部(水平連続窓)のズレが、単調になりがちな外観に変化を与えている。

Diagram 1
Diagram 2












| 名称 | ZOOM碑文谷 | 総戸数 | 19戸+1戸(管理室) |
|---|---|---|---|
| 住所 | 東京都目黒区碑文谷5丁目14-17 | 間取り | ステューディオ・1DK・1LDK |
| 構造・規模 | 鉄筋コンクリート造 地上5階建 | 事業主 | 株式会社 トーシンパートナーズ |
| 用途 | 集合住宅 | デザイン | 株式会社 アトリエナカ建築設計事務所 |
COPYRIGHT © TOHSHIN PARTNERS CO., LTD. ALL RIGHT RESERVED