PLAN間取り図
ELEVATION PLAN 立面図
SOUTH EAST 南東側立面図

NORTH WEST 北西側立面図

SOUTH WEST 南西側立面図

NORTH EAST 北東側立面図

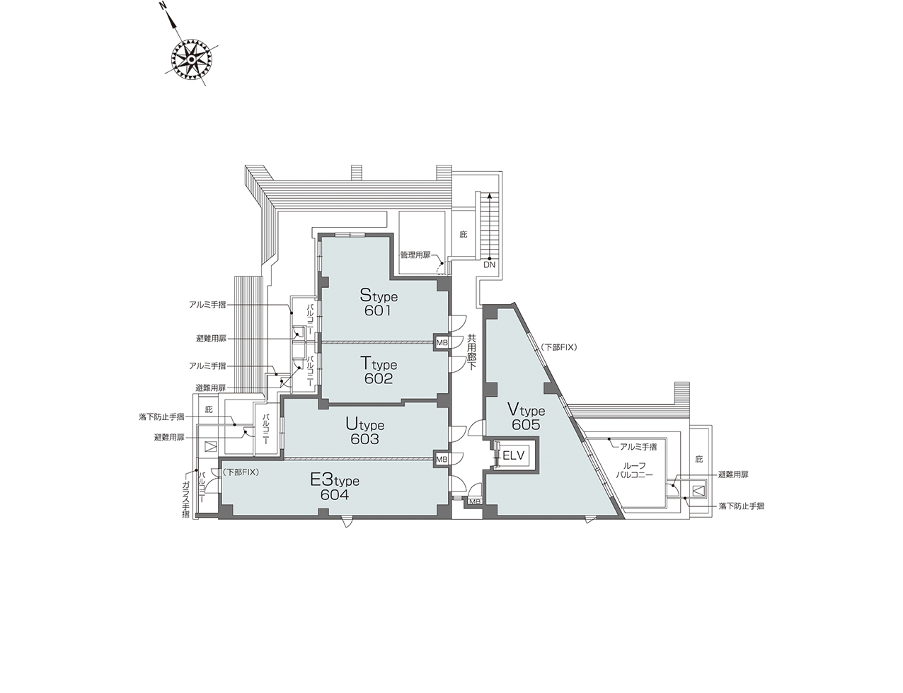
FLOOR PLAN 敷地配置図・各階平面図
図面上の各部屋タイプをクリックすると間取り図をご覧いただけます。
- 1F
- 2F
- 3F
- 4F
- 5F
- 6F
-
宅配・クリーニング・メールボックス
-
オートロック操作パネル
-
乾式耐火間仕切壁
-
避難ハッチ(偶数階)
-
避難ハッチ(奇数階)
ROOM PLAN 間取り図
-
A1・A1g・A2TYPE
専有面積/34.255 ㎡
バルコニ一面積(A1,A2)/3.06 ㎡
バルコニ一面積(A1g)/4.41 ㎡ -
B1・B1gTYPE
専有面積/35.340 ㎡
バルコニ一面積(B1g)/10.63 ㎡
バルコニ一面積(B1)/3.72 ㎡ -
B2・B2gTYPE
専有面積/35.340 ㎡
ガーデンテラス面積(B2g)/13.60 ㎡
バルコニ一面積(B2)/3.72 ㎡ -
B3TYPE
専有面積/35.340 ㎡
バルコニ一面積/3.72 ㎡ -
C1・C1g・C2・C2gTYPE
専有面積/35.340 ㎡
ガーデンテラス面積(C1g)/11.37 ㎡
ガーデンテラス面積(C2g)/13.60 ㎡
バルコニ一面積(C1)/3.72 ㎡
バルコニ一面積(C2)/4.72 ㎡ -
C3TYPE
専有面積/35.340 ㎡
バルコニ一面積/3.72 ㎡ -
C4TYPE
専有面積/35.340 ㎡
バルコニ一面積/4.72 ㎡ -
D1・D1gTYPE
専有面積/37.820 ㎡
ガーデンテラス面積(D1g)/11.12 ㎡
バルコニー面積(D1)/3.72 ㎡ -
D2TYPE
専有面積/37.820 ㎡
バルコニー面積/3.72 ㎡ -
E1・E1gTYPE
専有面積/37.820 ㎡
ガーデンテラス面積(E1g)/13.21 ㎡
バルコニー面積(E1)/3.60 ㎡ -
E2・E3TYPE
専有面積/37.820 ㎡
バルコニー面積/3.60 ㎡ -
F・FgTYPE
専有面積(F)/25.012 ㎡
専有面積(Fg)/26.092 ㎡
ガーデンテラス面積(Fg)/7.37 ㎡
バルコニー面積(F)/2.77 ㎡ -
G・GgTYPE
専有面積/25.747㎡
ガーデンテラス面積(Gg)/9.47㎡
バルコニー面積(G)/2.74㎡ -
HTYPE
専有面積/25.110 ㎡
バルコニー面積/3.12 ㎡ -
ITYPE
専有面積/33.345 ㎡
バルコニー面積/3.84 ㎡ -
JTYPE
専有面積/32.265 ㎡
バルコニー面積/3.84 ㎡ -
KTYPE
専有面積/36.916 ㎡
バルコニー(1)面積/3.18 ㎡
バルコニー(2)面積/4.01 ㎡
バルコニー(3)面積/2.99 ㎡ -
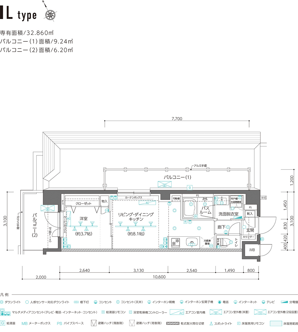
LTYPE
専有面積/32.860 ㎡
バルコニー(1)面積/9.24 ㎡
バルコニー(2)面積/6.20 ㎡ -
MTYPE
専有面積/30.945 ㎡
バルコニー面積/3.48 ㎡ -
NTYPE
専有面積/55.375 ㎡
バルコニー(1)面積/6.82 ㎡
バルコニー(2)面積/4.88 ㎡ -
OTYPE
専有面積/46.650 ㎡
バルコニー(1)面積/5.11 ㎡
バルコニー(2)面積/3.25 ㎡
バルコニー(3)面積/3.79 ㎡※専有面積にはトランクルーム面積0.35㎡含む
-
PTYPE
専有面積/33.790 ㎡
バルコニー面積/5.27 ㎡ -
QTYPE
専有面積/33.790 ㎡
バルコニー面積/6.27 ㎡ -
RTYPE
専有面積/43.151 ㎡
バルコニー面積/3.36 ㎡
室外機置場面積/6.01 ㎡ -
STYPE
専有面積/32.200 ㎡
バルコニー面積/2.99 ㎡ -
TTYPE
専有面積/22.316 ㎡
バルコニー面積/3.74 ㎡ -
UTYPE
専有面積/27.063 ㎡
バルコニー面積/4.50 ㎡ -
VTYPE
専有面積/45.194 ㎡
ルーフバルコニー面積/13.69 ㎡
施工上の理由および改良のため、設計・仕様を若干変更する場合がありますので、あらかじめご了承下さい。

×

×

×

×

×

×

×

×

×

×

×

×

×

×

×

×

×

×

×

×

×

×

×

×

×

×

×

×