宅配・クリーニングボックス
メールボックス
オートロック操作パネル
乾式耐火間仕切壁
避難ハッチ(偶数階)
避難ハッチ(奇数階)
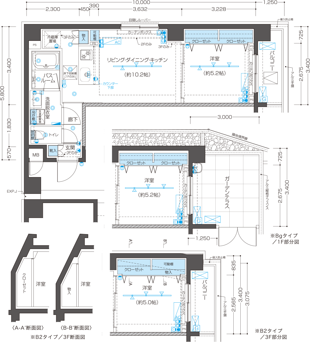
色のついている箇所をクリックすると、詳細を見ることができます。
施工上の理由および改良のため、設計・仕様を若干変更する場合がありますので、あらかじめご了承下さい。
表記の設備機器・器具等は見易くデザイン化されたものですので、実際とは異なります。
寸法はすべてmm単位で表記しております。
専有面積は建築基準法上の壁芯計算によるもので、不動産登記法上の内法計算による登記簿面積は、これより小さくなります。
専有面積には、PS部・MB部が含まれております。
帖数は、クローゼット・PS部を含まない壁芯(1帖=1.62㎡)面積で計算しております。
階によっては柱・梁の太さ、壁の厚さが多少相違する場合があります。
方位記号は若干誤差が生じる場合があります。正確な方位は設計図書にてご確認下さい。※図面と現況とが異なる場合は現況優先となります。



























ダウンライト
人感センサー対応ダウンライト
プラケットライト
人感センサー対応プラケットライト
蛍光灯
コンセント
コンセント(天井)
コンセント(食洗機用)
電話
インターネット
テレビ
マルチメディアコンセント(テレビ・電話・インターネット・コンセント)
分電盤
インターホン親機
インターホン玄関子機
給湯器リモコン
浴室乾燥機コントローラー
床暖房用リモコン
床暖房
エアコン室内機
エアコン室外機
給湯器
スポットライト
乾式耐火間切壁
避難ハッチ(偶数階)
避難ハッチ(寄数階)





